UW- value 1.0

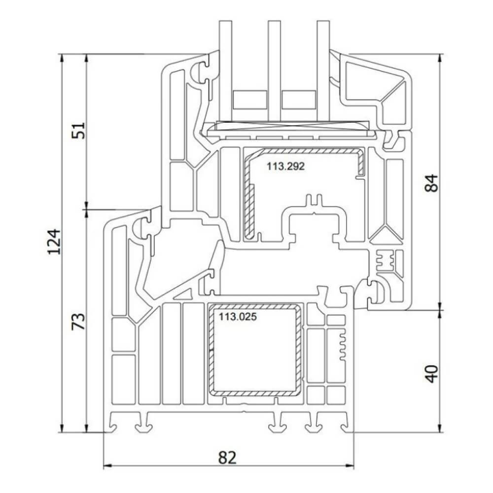
Veka Softline 82 es un sistema de clase premium diseñado para casas pasivas y chalets con altos requisitos de ahorro energético. Gracias al mayor ancho de montaje de 82 mm y la estructura de 7 cámaras del marco, el perfil proporciona valores récord de aislamiento térmico, previniendo pérdidas de calor incluso en los inviernos más severos. La presencia del tercer circuito de sellado (central) divide el espacio interior en dos cámaras, creando una barrera de aire adicional y protegiendo de forma fiable los herrajes de la humedad.

Como todos los sistemas Veka, Softline 82 se fabrica con paredes de clase «A» (grosor 3 mm), lo que garantiza una rigidez y durabilidad excepcionales de la estructura. El galce aumentado permite instalar acristalamientos de hasta 52 mm de grosor con un alojamiento profundo del vidrio (25 mm), lo que minimiza el riesgo de formación de condensación en los bordes y mejora significativamente el aislamiento acústico del espacio.

Número de artículo
400.120.001

Especificaciones Técnicas

Detalles

3 circuitos de sellado

Sistema MD

Tercer circuito de sellado
El circuito central de sellado separa de forma fiable las zonas de humedad, creando una cámara «seca» para el funcionamiento de los herrajes. Esto protege los mecanismos de la corrosión y la congelación, y mejora significativamente el aislamiento acústico de la ventana.

Efecto termo

Máximo calor

7 cámaras del perfil
La combinación de 82 mm de ancho y siete cámaras de aire hace de este sistema uno de los más cálidos del mercado. Es ideal para viviendas unifamiliares con calefacción autónoma, permitiendo un ahorro significativo en recursos energéticos.

Sin condensación

Alojamiento profundo

Alojamiento del vidrio 25mm
El acristalamiento está alojado en el perfil a 25 mm de profundidad. Este es un valor récord que permite aislar al máximo el marco espaciador del acristalamiento, eliminando el «puente térmico» y previniendo el empañamiento de las ventanas en el perímetro.

Veka Softline 82

Sistema insignia de eficiencia energética. Perfil de 7 cámaras con 82 mm de ancho y tres circuitos de sellado (MD) para máximo ahorro de calor.

Calcular Costo
Tiempo de fabricación estimado 3-6 semanas.
Servicios Disponibles
Medición y diseño gratuitos Más detalles
Entrega en el lugar de instalación Más detalles
Instalación por nuestros especialistas Más detalles
Comprar por Teléfono
Llámenos de lunes a sábado, excepto festivos, de 8:00 a 22:00. Domingos y festivos de 10:00 a 20:00. Llamar

Renovaciones

¿Pensando en la renovación que siempre pospone? Tenemos la solución

Más detalles

Opciones de Financiación

Disfrute de su compra ahora y páguelo a plazos utilizando nuestros servicios de financiación.

Más detalles

No Olvide Añadir

Elementos adicionales y accesorios que harán su hogar aún más confortable

Mosquiteras

Protegen su hogar de insectos, polvo y polen, permitiéndole disfrutar del aire fresco incluso en pleno verano.

Manillas con Cerradura

Los herrajes de calidad garantizan la comodidad de uso y la seguridad de sus ventanas y puertas.

Laminación

Las fachadas coloridas y el deseo de decorar su hogar hacen que la demanda de ventanas laminadas crezca cada año.

Elementos Decorativos

Las tiras y molduras decorativas permiten dar a sus ventanas un estilo individual, destacando las características arquitectónicas de su hogar.

Compare con Perfiles Similares

Soluciones alternativas de otros fabricantes

UW- value 1.3

Veka Softline 70

Referencia en resistencia. Perfil de clase superior «A» con refuerzo cerrado para máxima estabilidad y aislamiento térmico.
Eficiencia energética
A
Cámaras del perfil
5 cámaras
Profundidad del perfil
70mm
Altura del perfil
112mm
Acristalamiento
hasta 42mm
Aislamiento térmico
Uw ≤ 1.3 W/(m²·K)
Aislamiento acústico
≈45 Rw(dB)
UW- value 1.1

Veka Softline 76

Estándar moderno de eficiencia energética. 76 mm, clase «A» y equilibrio perfecto entre aislamiento térmico y transmisión de luz.
Eficiencia energética
A+
Cámaras del perfil
5 cámaras
Profundidad del perfil
76mm
Altura del perfil
112mm
Acristalamiento
hasta 48mm
Aislamiento térmico
Uw ≤ 1.1 W/(m²·K)
Aislamiento acústico
≈47 Rw(dB)
UW- value 1.1

Veka AluConnect

Híbrido revolucionario. Perfil de aluminio estructural exterior y núcleo cálido de PVC interior. Diseño de aluminio con aislamiento de plástico.
Eficiencia energética
A++
Cámaras del núcleo
Multicámara
Profundidad del perfil
82mm
Altura del perfil
114mm
Acristalamiento
hasta 58mm
Aislamiento térmico
Uw ≤ 1.1 W/(m²·K)
Aislamiento acústico
≈46 Rw(dB)
UW- value ≤ 1.1

Kömmerling EuroFutur Elegance

Un clásico para una reforma rápida y económica. Ideal para sustituir ventanas antiguas en pisos: se instala fácilmente en huecos estándar y ofrece un aspecto acogedor gracias a sus líneas suaves y redondeadas.
Eficiencia energética
B / A
Material
PVC (Greenline)
Profundidad del perfil
70 mm
Aislamiento
5 cámaras
Acristalamiento
hasta 39 mm
Protección térmica (Uw)
≤ 1.3 W/(m²·K)
Aislamiento acústico
≈ 40 Rw(dB)
UW- value ≤ 0.9

Kömmerling Xtrem 76 AD

Opción universal para el sol español. La composición especial del perfil no teme al calor y no amarillea con el tiempo. Es el «punto medio» para quienes necesitan ventanas alemanas fiables sin pagar de más por opciones innecesarias.
Eficiencia energética
A
Material
PVC (Xtrem)
Profundidad del perfil
76 mm
Aislamiento
5 cámaras
Acristalamiento
hasta 50 mm
Protección térmica (Uw)
≤ 1.1 W/(m²·K)
Aislamiento acústico
≈ 44 Rw(dB)
UW- value ≤ 0.8

Kömmerling Xtrem 76 MD

La mejor solución para casas cerca del mar. La tercera junta actúa como barrera: no deja entrar el polvo salino ni la humedad, protegiendo los mecanismos de la corrosión, y amortigua mucho mejor el ruido exterior.
Eficiencia energética
A+
Material
PVC (Xtrem)
Profundidad del perfil
76 mm
Aislamiento
6 cámaras / 3 juntas
Acristalamiento
hasta 50 mm
Protección térmica (Uw)
≤ 1.0 W/(m²·K)
Aislamiento acústico
≈ 47 Rw(dB)

Dejar una reseña

Reseñas de clientes

Descubra lo que la gente dice al respecto

0.0
Valoración media
0 reseñas
5 ★
0
4 ★
0
3 ★
0
2 ★
0
1 ★
0

Aún no hay reseñas. ¡Sea el primero!

FAQs

Preguntas Frecuentes sobre Veka Softline 82

¿Para qué sirve el tercer circuito de sellado (MD)?

El circuito central divide el espacio entre el marco y la hoja en dos cámaras. La cámara exterior «húmeda» evacua el agua, mientras que la interior «seca» protege los herrajes de la humedad y la corrosión. Además, crea una barrera adicional contra el sonido y las corrientes de aire.

¿Es adecuado este sistema para una «casa pasiva»?

Sí, es uno de los pocos sistemas de PVC que, con la configuración adecuada (acristalamiento cálido, insertos térmicos), alcanza valores de Uw ≤ 0,8 W/m²K, lo cual es necesario para la certificación de casa pasiva.

¿No será el perfil demasiado voluminoso?

A pesar del ancho de 82 mm, la altura visible de los travesaños (124 mm) es comparable a los sistemas convencionales. El diseño del perfil está realizado en el estilo clásico Softline con bordes redondeados, lo que aligeriza visualmente la estructura.

¿Qué grosor máximo de vidrio se puede instalar?

El sistema está diseñado para acristalamientos de hasta 52 mm. Esto permite usar una combinación de vidrios gruesos (6 mm), vidrio laminado y marcos espaciadores anchos, obteniendo una ventana con aislamiento acústico como el de una pared de ladrillo.

¿Hay que reforzar los herrajes para estas ventanas?

Las ventanas con perfil de 82 mm y acristalamiento de 52 mm resultan pesadas. Utilizamos obligatoriamente grupos de bisagras reforzados (por ejemplo, Roto NX o Siegenia Titan), diseñados para un peso de hoja de 130 kg o más.

¿En qué se diferencia del Softline 76, si también tiene 25 mm de alojamiento?

Softline 82 tiene 7 cámaras frente a 5, tres circuitos de sellado de serie y mayor anchura. Esto proporciona un aumento del aislamiento térmico del perfil de aproximadamente el 10-15% y mejor hermeticidad en zonas de viento extremo.

¿Necesita ayuda para elegir?

Solicite una consulta gratuita de nuestros especialistas. Le devolveremos la llamada en un momento conveniente y discutiremos cómo podemos ayudarle.

Todos los precios están en euros e incluyen IVA y costos de entrega. Los precios tachados corresponden a los precios originales del producto según el precio de venta recomendado por el fabricante (si está disponible). En caso de prepago, los precios y ofertas serán válidos durante 7 días desde la confirmación del pedido; posteriormente, estarán sujetos a cambios. Zona de entrega: España.

Los colores, acristalamientos y tamaños pueden diferir de las imágenes. No se garantiza el realismo de la imagen.

Algunos productos e imágenes relacionadas en videos pueden contener artículos descontinuados e información.

1 Los tiempos de producción pueden aumentarse bajo ciertas circunstancias (p. ej., diseño especial, períodos de vacaciones de la empresa, etc.). Por razones técnicas, no podemos tener en cuenta estas extensiones al calcular los tiempos de producción. Debido a circunstancias externas en la adquisición de materias primas como acero, PVC y madera, el tiempo de producción de su pedido puede aumentarse. Por favor, tenga esto en cuenta. Esto no le da derecho a exigir cambios en los precios contractuales o la posibilidad de rescindir el contrato de compraventa.

Como cliente de Ventanas Fraktal, recibirá recomendaciones por correo electrónico, de las cuales puede darse de baja en cualquier momento siguiendo el enlace adjunto. Puede encontrar información más detallada en nuestra Política de privacidad.