UW- value 1.3

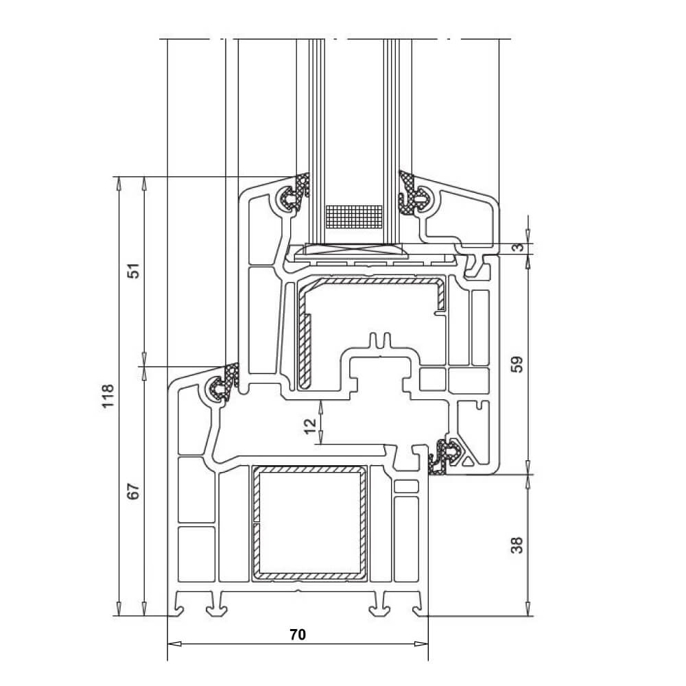
Veka Softline 70 es un sistema premium que establece los estándares de calidad en la industria de ventanas. A diferencia de muchos análogos, es un perfil genuino de clase «A» según la norma DIN EN 12608. Esto significa que el grosor de las paredes exteriores es de 3 mm (±0,2 mm). Esta reserva de resistencia garantiza una geometría excepcional de la ventana, rigidez en las uniones angulares y durabilidad de los herrajes, que se fijan de forma segura en el plástico.

La construcción de cinco cámaras con una profundidad de montaje de 70 mm crea una potente barrera contra el frío y el ruido. Gracias a la posibilidad de instalar acristalamientos de hasta 42 mm de grosor y al uso de juntas de calidad, las ventanas de perfil Veka Softline hacen que el hogar sea verdaderamente eficiente energéticamente. Es la elección para quienes no están dispuestos a hacer concesiones en cuestiones de fiabilidad y buscan una solución «instalar y olvidar» para los próximos 50 años.

Número de artículo
400.100.001

Especificaciones Técnicas

Detalles

Estándar alemán

Pared de clase «A»

Pared de 3mm Veka
La característica principal del Veka Softline 70 es el grosor de la pared exterior de 3 mm. Esto corresponde a la clase superior «A» según el estándar RAL. Las paredes engrosadas proporcionan una resistencia de las soldaduras angulares que supera los valores estándar, y garantizan que las ventanas no se deformen con el tiempo, ni las bisagras se descuelguen incluso con hojas pesadas.

Esqueleto de acero

Refuerzo cerrado

Refuerzo cerrado
Dentro del marco Veka Softline 70 se utiliza un perfil de refuerzo de sección cerrada (cuadrado). Este nervio de rigidez permite crear ventanas de grandes dimensiones y configuraciones complejas, resistiendo eficazmente las cargas de viento. Gracias a 4 nervios de rigidez en lugar de 2 (como en el refuerzo en forma de U), el marco mantiene una geometría perfecta durante años.

Sin condensación

Alojamiento profundo del vidrio

Profundidad de alojamiento del acristalamiento
La altura del galce en el perfil Veka Softline permite alojar el acristalamiento a 21 mm de profundidad. Esta solución constructiva «oculta» el marco espaciador del acristalamiento más profundamente en el perfil, creando una zona cálida en el perímetro del vidrio. Esto reduce significativamente la probabilidad de formación de condensación en los bordes de la ventana durante las heladas intensas.

Veka Softline 70

Referencia en resistencia. Perfil de clase superior «A» con refuerzo cerrado para máxima estabilidad y aislamiento térmico.

Calcular Costo
Tiempo de fabricación estimado 3-6 semanas.
Servicios Disponibles
Medición y diseño gratuitos Más detalles
Entrega en el lugar de instalación Más detalles
Instalación por nuestros especialistas Más detalles
Comprar por Teléfono
Llámenos de lunes a sábado, excepto festivos, de 8:00 a 22:00. Domingos y festivos de 10:00 a 20:00. Llamar

Renovaciones

¿Pensando en la renovación que siempre pospone? Tenemos la solución

Más detalles

Opciones de Financiación

Disfrute de su compra ahora y páguelo a plazos utilizando nuestros servicios de financiación.

Más detalles

No Olvide Añadir

Elementos adicionales y accesorios que harán su hogar aún más confortable

Mosquiteras

Protegen su hogar de insectos, polvo y polen, permitiéndole disfrutar del aire fresco incluso en pleno verano.

Manillas con Cerradura

Los herrajes de calidad garantizan la comodidad de uso y la seguridad de sus ventanas y puertas.

Laminación

Las fachadas coloridas y el deseo de decorar su hogar hacen que la demanda de ventanas laminadas crezca cada año.

Elementos Decorativos

Las tiras y molduras decorativas permiten dar a sus ventanas un estilo individual, destacando las características arquitectónicas de su hogar.

Compare con Perfiles Similares

Soluciones alternativas de otros fabricantes

UW- value 1.1

Veka Softline 76

Estándar moderno de eficiencia energética. 76 mm, clase «A» y equilibrio perfecto entre aislamiento térmico y transmisión de luz.
Eficiencia energética
A+
Cámaras del perfil
5 cámaras
Profundidad del perfil
76mm
Altura del perfil
112mm
Acristalamiento
hasta 48mm
Aislamiento térmico
Uw ≤ 1.1 W/(m²·K)
Aislamiento acústico
≈47 Rw(dB)
UW- value 1.0

Veka Softline 82

Sistema insignia de eficiencia energética. Perfil de 7 cámaras con 82 mm de ancho y tres circuitos de sellado (MD) para máximo ahorro de calor.
Eficiencia energética
A++
Cámaras del perfil
7 cámaras
Profundidad del perfil
82mm
Altura del perfil
124mm
Acristalamiento
hasta 52mm
Aislamiento térmico
Uw ≤ 0.80 W/(m²·K)
Aislamiento acústico
≈47 Rw(dB)
UW- value 1.1

Veka AluConnect

Híbrido revolucionario. Perfil de aluminio estructural exterior y núcleo cálido de PVC interior. Diseño de aluminio con aislamiento de plástico.
Eficiencia energética
A++
Cámaras del núcleo
Multicámara
Profundidad del perfil
82mm
Altura del perfil
114mm
Acristalamiento
hasta 58mm
Aislamiento térmico
Uw ≤ 1.1 W/(m²·K)
Aislamiento acústico
≈46 Rw(dB)
UW- value ≤ 1.1

Kömmerling EuroFutur Elegance

Un clásico para una reforma rápida y económica. Ideal para sustituir ventanas antiguas en pisos: se instala fácilmente en huecos estándar y ofrece un aspecto acogedor gracias a sus líneas suaves y redondeadas.
Eficiencia energética
B / A
Material
PVC (Greenline)
Profundidad del perfil
70 mm
Aislamiento
5 cámaras
Acristalamiento
hasta 39 mm
Protección térmica (Uw)
≤ 1.3 W/(m²·K)
Aislamiento acústico
≈ 40 Rw(dB)
UW- value ≤ 0.9

Kömmerling Xtrem 76 AD

Opción universal para el sol español. La composición especial del perfil no teme al calor y no amarillea con el tiempo. Es el «punto medio» para quienes necesitan ventanas alemanas fiables sin pagar de más por opciones innecesarias.
Eficiencia energética
A
Material
PVC (Xtrem)
Profundidad del perfil
76 mm
Aislamiento
5 cámaras
Acristalamiento
hasta 50 mm
Protección térmica (Uw)
≤ 1.1 W/(m²·K)
Aislamiento acústico
≈ 44 Rw(dB)
UW- value ≤ 0.8

Kömmerling Xtrem 76 MD

La mejor solución para casas cerca del mar. La tercera junta actúa como barrera: no deja entrar el polvo salino ni la humedad, protegiendo los mecanismos de la corrosión, y amortigua mucho mejor el ruido exterior.
Eficiencia energética
A+
Material
PVC (Xtrem)
Profundidad del perfil
76 mm
Aislamiento
6 cámaras / 3 juntas
Acristalamiento
hasta 50 mm
Protección térmica (Uw)
≤ 1.0 W/(m²·K)
Aislamiento acústico
≈ 47 Rw(dB)

Dejar una reseña

Reseñas de clientes

Descubra lo que la gente dice al respecto

0.0
Valoración media
0 reseñas
5 ★
0
4 ★
0
3 ★
0
2 ★
0
1 ★
0

Aún no hay reseñas. ¡Sea el primero!

FAQs

Preguntas Frecuentes sobre Veka Softline 70

¿Qué aporta la clase de perfil «A» (pared de 3 mm)?

La pared de 3 mm proporciona una soldadura angular un 15-20% más resistente en comparación con la clase económica «B». Esto garantiza que las ventanas no se deformen, las bisagras no se arranquen del plástico y la geometría de la hoja permanezca perfecta durante décadas.

¿Por qué el refuerzo cerrado es mejor que el de forma de U?

En el marco Veka se utiliza un tubo de acero cuadrado (contorno cerrado). Tiene 4 nervios de rigidez, mientras que el de forma de U solo tiene 2. Esto es crítico para resistir las cargas de viento y el peso de las hojas pesadas, evitando la «torsión» del marco durante la instalación.

¿Cuál es el acristalamiento más cálido para este sistema?

Recomendamos un acristalamiento de doble cámara de 40-42 mm de grosor con dos vidrios de baja emisividad y marco espaciador cálido. Esto permitirá aprovechar al máximo las propiedades térmicas del perfil Softline 70.

¿Se puede reemplazar la junta después de 10 años?

Sí. A diferencia de los sistemas con junta coextruida (soldada), en Veka Softline la junta se inserta en una ranura. Si es necesario, se puede extraer fácilmente y reemplazar por una nueva sin cambiar toda la ventana.

¿Es adecuado el perfil para ventanas de colores?

Perfectamente. Gracias a la pared exterior gruesa y al potente refuerzo, el perfil soporta la expansión térmica de la laminación oscura al sol sin deformarse, lo que a menudo ocurre con perfiles más delgados.

¿En qué se diferencia Softline 70 de Euroline?

Euroline es un sistema de 3 cámaras con un ancho de 58 mm, más adecuado para balcones o casas de campo. Softline 70 es un sistema completo de 5 cámaras con un ancho de 70 mm, diseñado para el acristalamiento térmico de apartamentos y chalets.

¿Necesita ayuda para elegir?

Solicite una consulta gratuita de nuestros especialistas. Le devolveremos la llamada en un momento conveniente y discutiremos cómo podemos ayudarle.

Todos los precios están en euros e incluyen IVA y costos de entrega. Los precios tachados corresponden a los precios originales del producto según el precio de venta recomendado por el fabricante (si está disponible). En caso de prepago, los precios y ofertas serán válidos durante 7 días desde la confirmación del pedido; posteriormente, estarán sujetos a cambios. Zona de entrega: España.

Los colores, acristalamientos y tamaños pueden diferir de las imágenes. No se garantiza el realismo de la imagen.

Algunos productos e imágenes relacionadas en videos pueden contener artículos descontinuados e información.

1 Los tiempos de producción pueden aumentarse bajo ciertas circunstancias (p. ej., diseño especial, períodos de vacaciones de la empresa, etc.). Por razones técnicas, no podemos tener en cuenta estas extensiones al calcular los tiempos de producción. Debido a circunstancias externas en la adquisición de materias primas como acero, PVC y madera, el tiempo de producción de su pedido puede aumentarse. Por favor, tenga esto en cuenta. Esto no le da derecho a exigir cambios en los precios contractuales o la posibilidad de rescindir el contrato de compraventa.

Como cliente de Ventanas Fraktal, recibirá recomendaciones por correo electrónico, de las cuales puede darse de baja en cualquier momento siguiendo el enlace adjunto. Puede encontrar información más detallada en nuestra Política de privacidad.