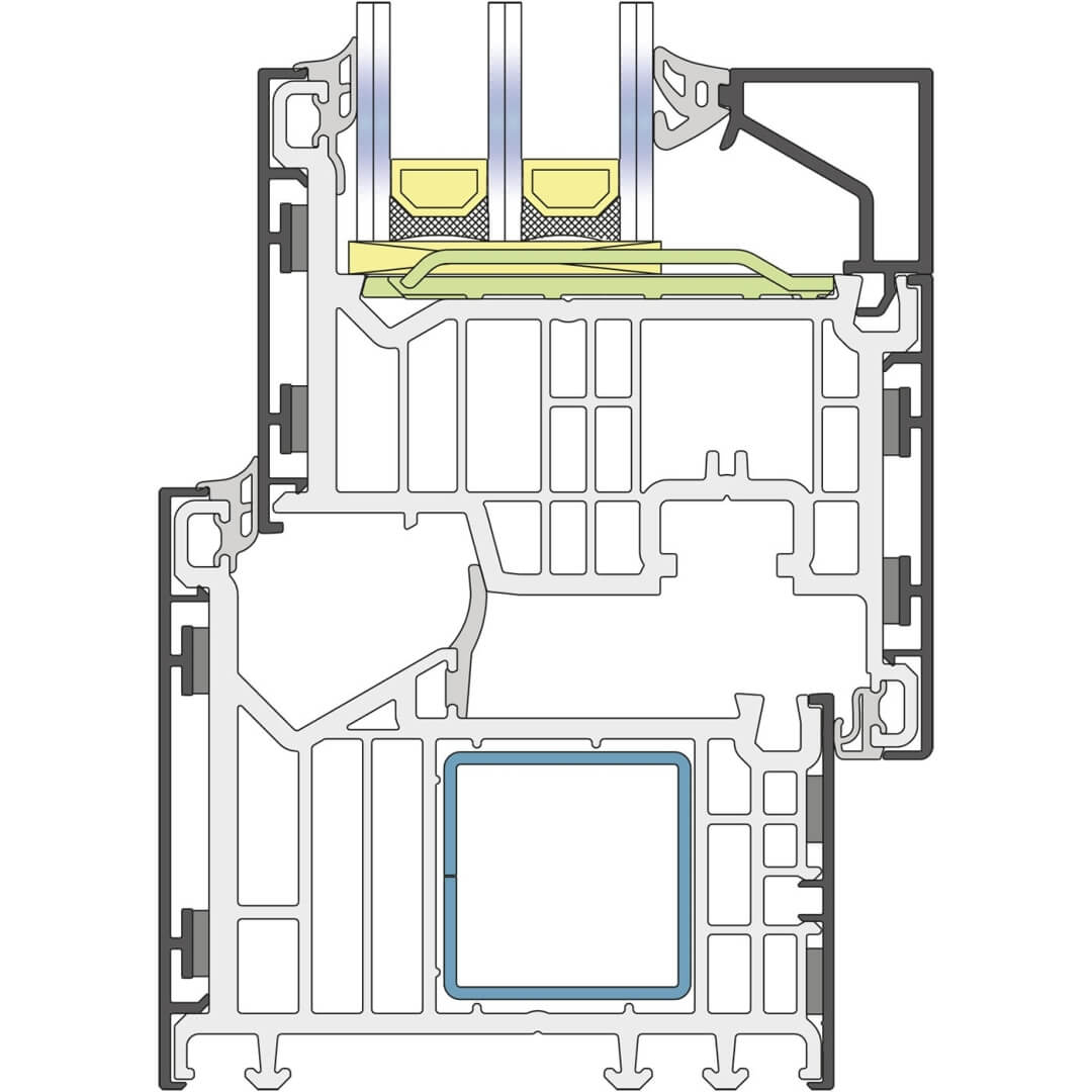
Veka AluConnect es un desarrollo de ingeniería único que combina las ventajas de dos materiales en un sistema inseparable. A diferencia de las ventanas estándar con embellecedores de aluminio, aquí el aluminio no es solo decorativo, sino un elemento estructural portante. El contorno exterior de aluminio asume todas las cargas estáticas, lo que permite prescindir del refuerzo de acero dentro del perfil. En el interior se encuentra el «corazón cálido» — un perfil multicámara de PVC que proporciona el máximo aislamiento térmico, inalcanzable para sistemas de aluminio convencionales sin costosos puentes térmicos.
El sistema está diseñado especialmente para la arquitectura moderna: tiene formas rectangulares estrictas, travesaños estrechos y la posibilidad de pintura en polvo en cualquier color RAL. Gracias a la unión rígida del aluminio y el PVC, la ventana mantiene una geometría perfecta ante cualquier cambio de temperatura. Es la elección ideal para quienes desean obtener el aspecto premium de las ventanas de aluminio, pero no están dispuestos a sacrificar el confort del hogar ni a pagar de más por la calefacción.
Especificaciones Técnicas
Detalles
Híbrido revolucionario. Perfil de aluminio estructural exterior y núcleo cálido de PVC interior. Diseño de aluminio con aislamiento de plástico.
Parámetros constructivos del sistema:
- Tipo de sistema: Sistema híbrido metal-plástico (unión estructural). ¡No confundir con embellecedores!
- Parte portante: Perfil de aluminio exterior. Asume toda la estática y las cargas de viento.
- Parte aislante: Perfil de PVC interior. Proporciona aislamiento térmico del «núcleo» y ausencia de puentes térmicos.
- Profundidad de montaje: 82 mm (compatible con perfiles adicionales del sistema Softline 82).
- Refuerzo: Normalmente no se requiere refuerzo de acero (el contorno de aluminio proporciona suficiente rigidez).
- Sellado: 3 circuitos de sellado (sistema MD). El circuito central está integrado en la parte de PVC.
Opciones de acristalamiento y diseño:
- Grosor máximo de relleno: hasta 58 mm (valor récord para series estándar).
- Tecnología de fijación: Posibilidad de encolar el acristalamiento en la hoja para crear efecto de vidrio continuo y máxima rigidez.
- Diseño de esquinas: El aluminio se une mecánicamente o se prensa (sin soldadura visible como en PVC), el PVC interior se suelda para hermeticidad.
- Acabado: Pintura en polvo en cualquier RAL, anodizado, posibilidad de decoración «imitación madera» (sublimación).
Geometría y características:
- Estilo visual: Diseño cúbico minimalista, ausencia de junquillos (visualmente), travesaños estrechos.
- Forma de la hoja: Desplazada o semi-desplazada, posibilidad de crear efecto de hoja oculta.
Características certificadas:
- Aislamiento térmico del perfil (Uf): 1,1 W/m²K (mejor que el aluminio puro con rotura de puente térmico de la misma profundidad).
- Resistencia térmica (R0): > 1,0 m²°C/W.
- Aislamiento acústico: Altos valores gracias a la masa y la posibilidad de instalar vidrios laminados de hasta 58 mm.
- Resistencia antirrobo: hasta clase RC2.
- Vida útil: Prácticamente ilimitada (el aluminio exterior es eterno, el PVC interior está protegido del sol).
Estática del metal
Aluminio estructural
PVC interior
Corazón cálido
Cualquier color RAL
Diseño sin límites
Veka AluConnect
Híbrido revolucionario. Perfil de aluminio estructural exterior y núcleo cálido de PVC interior. Diseño de aluminio con aislamiento de plástico.
Más Ideas e Inspiración
Estos son algunos ejemplos de nuestro trabajo con el perfil Veka AluConnect. Toda esta inspiración es para usted y solo para usted.
Estamos trabajando en mantener los datos actualizados. Contáctenos si necesita materiales actualizados.
Opciones de Financiación
Disfrute de su compra ahora y páguelo a plazos utilizando nuestros servicios de financiación.
Más detallesNo Olvide Añadir
Elementos adicionales y accesorios que harán su hogar aún más confortable
Mosquiteras
Manillas con Cerradura
Laminación
Elementos Decorativos
Compare con Perfiles Similares
Soluciones alternativas de otros fabricantes
Veka Softline 70
Veka Softline 76
Veka Softline 82
Kömmerling EuroFutur Elegance
Kömmerling Xtrem 76 AD
Kömmerling Xtrem 76 MD
Disponible en Su Región
Trabajamos en toda España
Dejar una reseña
Reseñas de clientes
Descubra lo que la gente dice al respecto
Aún no hay reseñas. ¡Sea el primero!
FAQs
Preguntas Frecuentes sobre Veka AluConnect
¿En qué se diferencia de los embellecedores de aluminio en ventanas?
En las ventanas con embellecedores, la estructura portante es el perfil de PVC con refuerzo, y el aluminio es solo decorativo. En AluConnect, el aluminio es el esqueleto portante de la ventana. Están unidos al PVC de forma permanente en fábrica y funcionan como un todo.
¿Por qué comprar AluConnect si existe el aluminio con rotura de puente térmico?
AluConnect es significativamente más cálido que el aluminio estándar (Uf 1.1), ya que en el interior no hay metal conductor del frío, sino PVC cálido. Además, el coste de AluConnect suele ser inferior al de los sistemas de aluminio premium con roturas de puente térmico anchas.
¿Cómo se ven las esquinas en estas ventanas?
Desde el exterior se ve una unión perfecta del aluminio a 90 grados (como en las ventanas de aluminio caras), sin la soldadura lijada característica del plástico. En el interior hay una soldadura limpia de PVC.
¿Se pueden pintar las ventanas en cualquier color?
Sí, la parte exterior de aluminio se pinta con el método de polvo en cualquier color RAL. El acabado es resistente al vandalismo y no se decolora con el sol durante décadas. La parte interior puede ser blanca o laminada.
¿Se necesita refuerzo de acero en el interior?
En la mayoría de las construcciones estándar, no. El contorno cerrado de aluminio en el exterior proporciona una estática excelente, superior al refuerzo de acero convencional dentro del PVC. Esto también reduce el peso de la hoja.
¿Qué grosor de acristalamiento cabe?
El sistema permite instalar acristalamientos de hasta 58 mm. Esto da acceso al uso de vidrios blindados, vidrios laminados acústicos pesados y acristalamientos de triple cámara para climas extremos.









