UW- value 1.1

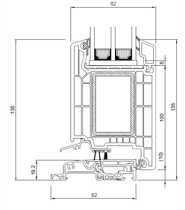
Las puertas de entrada Veka Softline 82 representan la cúspide tecnológica de la gama de sistemas de puertas del grupo. Diseñado específicamente para la construcción de casas pasivas, este sistema tiene una profundidad de instalación de 82 mm y una geometría de hojas única. La principal diferencia con las series inferiores es la presencia de una junta central (MD), que protege de manera fiable el cierre contra las corrientes de aire y la congelación incluso en condiciones climáticas extremas. Es la elección para quienes construyen una casa sólida y cálida y quieren minimizar las pérdidas de calor a través de la zona de entrada.

El sistema se basa en un perfil de la más alta clase A (pared de 3 mm) con un potente refuerzo cerrado y conectores de esquina soldados obligatorios. Esta construcción soporta enormes cargas de peso, permitiendo el uso de pesados acristalamientos blindados o paneles de diseño de hasta 52 mm de espesor. La puerta Softline 82 crea una sensación de seguridad de caja fuerte: es maciza, silenciosa y absolutamente hermética, proporcionando seguridad de clase RC2/RC3.

Número de artículo
400.510.001

Especificaciones Técnicas

Detalles

3 niveles de protección

Sistema MD

Junta central
A diferencia de las puertas estándar, la Softline 82 está equipada con una tercera junta de sellado. Crea una cámara de aire adicional en la zona del cierre, eliminando las corrientes de aire y protegiendo las cerraduras del contacto directo con la humedad exterior.

Panel de 52 mm

Máximo calor

Panel sándwich
La profundidad del perfil de 82 mm permite instalar rellenos de hasta 52 mm de espesor. Esto permite utilizar paneles súper térmicos con aislamiento XPS, que superan en aislamiento térmico a un muro de ladrillo.

Esquinas soldadas

Resistencia monolítica

Refuerzo de esquina
Para evitar que la pesada puerta se descuelgue, se utilizan piezas de inserción especiales dentro del perfil que conectan rígidamente el refuerzo vertical y horizontal. El armazón de la puerta se convierte en un todo único.

Veka Softline 82 Door

Puerta de entrada de gama alta. Sistema energéticamente eficiente de 82 mm con tres juntas de sellado para casas pasivas.

Calcular Costo
Tiempo de fabricación estimado 3-6 semanas.
Servicios Disponibles
Medición y diseño gratuitos Más detalles
Entrega en el lugar de instalación Más detalles
Instalación por nuestros especialistas Más detalles
Comprar por Teléfono
Llámenos de lunes a sábado, excepto festivos, de 8:00 a 22:00. Domingos y festivos de 10:00 a 20:00. Llamar

Renovaciones

¿Pensando en la renovación que siempre pospone? Tenemos la solución

Más detalles

Opciones de Financiación

Disfrute de su compra ahora y páguelo a plazos utilizando nuestros servicios de financiación.

Más detalles

No Olvide Añadir

Elementos adicionales y accesorios que harán su hogar aún más confortable

Mosquiteras

Protegen su hogar de insectos, polvo y polen, permitiéndole disfrutar del aire fresco incluso en pleno verano.

Manillas con Cerradura

Los herrajes de calidad garantizan la comodidad de uso y la seguridad de sus ventanas y puertas.

Laminación

Las fachadas coloridas y el deseo de decorar su hogar hacen que la demanda de ventanas laminadas crezca cada año.

Elementos Decorativos

Las tiras y molduras decorativas permiten dar a sus ventanas un estilo individual, destacando las características arquitectónicas de su hogar.

Compare con Perfiles Similares

Soluciones alternativas de otros fabricantes

UW- value 1.3

Veka Softline 70

Referencia en resistencia. Perfil de clase superior «A» con refuerzo cerrado para máxima estabilidad y aislamiento térmico.
Eficiencia energética
A
Cámaras del perfil
5 cámaras
Profundidad del perfil
70mm
Altura del perfil
112mm
Acristalamiento
hasta 42mm
Aislamiento térmico
Uw ≤ 1.3 W/(m²·K)
Aislamiento acústico
≈45 Rw(dB)
UW- value 1.1

Veka Softline 76

Estándar moderno de eficiencia energética. 76 mm, clase «A» y equilibrio perfecto entre aislamiento térmico y transmisión de luz.
Eficiencia energética
A+
Cámaras del perfil
5 cámaras
Profundidad del perfil
76mm
Altura del perfil
112mm
Acristalamiento
hasta 48mm
Aislamiento térmico
Uw ≤ 1.1 W/(m²·K)
Aislamiento acústico
≈47 Rw(dB)
UW- value 1.0

Veka Softline 82

Sistema insignia de eficiencia energética. Perfil de 7 cámaras con 82 mm de ancho y tres circuitos de sellado (MD) para máximo ahorro de calor.
Eficiencia energética
A++
Cámaras del perfil
7 cámaras
Profundidad del perfil
82mm
Altura del perfil
124mm
Acristalamiento
hasta 52mm
Aislamiento térmico
Uw ≤ 0.80 W/(m²·K)
Aislamiento acústico
≈47 Rw(dB)
UW- value 1,3

Puerta Rehau Euro-Design 70

Puerta de entrada óptima de 70 mm. La mejor relación calidad-precio alemana.
Eficiencia energética
A
Tipo de puerta
Estándar 70mm
Profundidad del perfil
70mm
Cámaras
5 cámaras
Espesor del panel
hasta 41mm
Seguridad
RC1 / RC2
Protección térmica
Uw ≤ 1,3 W/(m²·K)
UW- value 1,2

Puerta Rehau Brillant-Design 70

Puerta de entrada clásica y fiable de 70mm con alta estabilidad.
Eficiencia energética
A
Tipo de puerta
Puerta de entrada
Profundidad del perfil
70mm
Cámaras del perfil
5 cámaras
Espesor del panel
hasta 42mm
Seguridad
hasta RC2
Protección térmica
Uw ≤ 1,2 W/(m²·K)
UW- value 0,90

Puerta Rehau Synego

Puerta energéticamente eficiente de 80mm (estándar Passivhaus). Hasta un 50% más de retención de calor, aislamiento acústico de 46 dB y resistencia al robo RC3.
Eficiencia energética
A++
Tipo de puerta
Puerta de entrada
Profundidad del perfil
80mm
Cámaras del perfil
7 cámaras
Espesor del panel
hasta 51mm
Seguridad
hasta RC2
Protección térmica
Uw ≤ 0,90 W/(m²·K)

Dejar una reseña

Reseñas de clientes

Descubra lo que la gente dice al respecto

0.0
Valoración media
0 reseñas
5 ★
0
4 ★
0
3 ★
0
2 ★
0
1 ★
0

Aún no hay reseñas. ¡Sea el primero!

FAQs

Preguntas Frecuentes sobre Veka Softline 82 Door

¿Realmente necesita la puerta 3 juntas de sellado?

Para una puerta de entrada es una gran ventaja. La tercera junta corta el aire frío antes de que llegue a la junta principal y mejora significativamente el aislamiento acústico del ruido de la calle.

¿Es adecuada para una casa pasiva?

Sí, utilizando un panel de 52 mm de espesor o un acristalamiento con criptón, el valor Ud (transmitancia térmica de la puerta) puede bajar de 0,9 W/m²K, cumpliendo los estándares de viviendas energéticamente eficientes.

¿Soportará el perfil aperturas frecuentes?

Por supuesto. La clase A (pared de 3 mm) proporciona una base sólida para la fijación de las bisagras. Las bisagras no se aflojan con el tiempo, como ocurre con los perfiles de paredes finas de gama económica.

¿Qué umbral se utiliza?

Utilizamos un umbral combinado (aluminio + plástico) con rotura de puente térmico. Tiene solo 20 mm de altura, es cómodo para pasar, pero no se congela gracias a la inserción térmica.

¿Se puede hacer una puerta con vidrio de altura completa?

Sí. Gracias al potente refuerzo, Veka Softline 82 permite fabricar puertas de entrada completamente acristaladas. Se utiliza triplex de seguridad o vidrio templado en un paquete térmico.

¿Cuánto pesará la puerta?

La puerta resulta maciza y sólida (la hoja puede pesar 80-100 kg), pero gracias a las bisagras de calidad (por ejemplo, Dr. Hahn o Roto Solid) se abre y cierra con un ligero movimiento de la mano.

¿Necesita ayuda para elegir?

Solicite una consulta gratuita de nuestros especialistas. Le devolveremos la llamada en un momento conveniente y discutiremos cómo podemos ayudarle.

Todos los precios están en euros e incluyen IVA y costos de entrega. Los precios tachados corresponden a los precios originales del producto según el precio de venta recomendado por el fabricante (si está disponible). En caso de prepago, los precios y ofertas serán válidos durante 7 días desde la confirmación del pedido; posteriormente, estarán sujetos a cambios. Zona de entrega: España.

Los colores, acristalamientos y tamaños pueden diferir de las imágenes. No se garantiza el realismo de la imagen.

Algunos productos e imágenes relacionadas en videos pueden contener artículos descontinuados e información.

1 Los tiempos de producción pueden aumentarse bajo ciertas circunstancias (p. ej., diseño especial, períodos de vacaciones de la empresa, etc.). Por razones técnicas, no podemos tener en cuenta estas extensiones al calcular los tiempos de producción. Debido a circunstancias externas en la adquisición de materias primas como acero, PVC y madera, el tiempo de producción de su pedido puede aumentarse. Por favor, tenga esto en cuenta. Esto no le da derecho a exigir cambios en los precios contractuales o la posibilidad de rescindir el contrato de compraventa.

Como cliente de Ventanas Fraktal, recibirá recomendaciones por correo electrónico, de las cuales puede darse de baja en cualquier momento siguiendo el enlace adjunto. Puede encontrar información más detallada en nuestra Política de privacidad.