UW- value ≤ 0.8

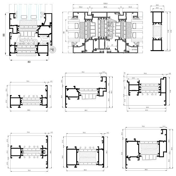
Cortizo COR 80 Industrial es una ventana que destruye el mito de que "solo el plástico puede ser cálido". Los ingenieros de Cortizo han conseguido crear un sistema de aluminio que supera en características de aislamiento térmico a la mayoría de perfiles de PVC del mercado. El secreto está en la escala: la profundidad de montaje de 80 mm permitió integrar una gigantesca rotura de puente térmico de 45 mm de ancho, rellena con una inserción especial de poliolefina espumada. Esto crea una barrera infranqueable para el frío y el calor.

Este sistema está creado para los proyectos más exigentes, donde cada detalle importa. La certificación Passivhaus confirma que COR 80 es ideal para casas de consumo energético casi nulo. Además del aislamiento térmico extremo, el perfil posee una estática sobresaliente, permitiendo sostener pesados vidrios de triple cámara de hasta 120 kg (y más con bisagras ocultas). La estética de la serie "Industrial" son líneas rectas sobrias que subrayan el estatus premium de la propiedad y el gusto moderno del propietario.

Número de artículo
300.210.002

Especificaciones Técnicas

Detalles

Passivhaus

Eficiencia energética récord

Ventana de ahorro energético Cortizo COR 80 Industrial
COR 80 Industrial es uno de los pocos sistemas de aluminio en el mundo que ha obtenido el prestigioso certificado Passivhaus. El coeficiente de transmisión térmica de la ventana (Uw) alcanza 0,8 W/m²K, lo que lo convierte en la elección ideal para edificios de consumo energético casi nulo, proporcionando máximo confort y mínimas facturas de calefacción.

Tecnología

Rotura de puente térmico de 45 mm con espuma

Sección del perfil Cortizo COR 80 con aislante
Para alcanzar estas características se utiliza una rotura de puente térmico de anchura récord: 45 mm. Pero los ingenieros fueron más allá: el espacio entre las inserciones de poliamida está relleno de poliolefina espumada. Este "sándwich" elimina por completo la circulación de aire dentro del perfil y la congelación.

Silencio

Acristalamientos hasta 65 mm

Triple acristalamiento en perfil Cortizo COR 80
El potente marco permite instalar acristalamientos de hasta 65 mm de espesor. Esto posibilita el uso de las fórmulas de acristalamiento más complejas: por ejemplo, triple vidrio con vidrios antivandalismo gruesos (laminados) y cámaras amplias rellenas de kriptón, para un aislamiento acústico absoluto.

Cortizo COR 80 Industrial

La cima de la evolución de las ventanas de aluminio. Sistema con profundidad de montaje de 80 mm y rotura de puente térmico récord, certificado para construcción de casas pasivas (Passivhaus).

Calcular Costo
Tiempo de fabricación estimado 3-6 semanas.
Servicios Disponibles
Medición y diseño gratuitos Más detalles
Entrega en el lugar de instalación Más detalles
Instalación por nuestros especialistas Más detalles
Comprar por Teléfono
Llámenos de lunes a sábado, excepto festivos, de 8:00 a 22:00. Domingos y festivos de 10:00 a 20:00. Llamar

Renovaciones

¿Pensando en la renovación que siempre pospone? Tenemos la solución

Más detalles

Opciones de Financiación

Disfrute de su compra ahora y páguelo a plazos utilizando nuestros servicios de financiación.

Más detalles

No Olvide Añadir

Elementos adicionales y accesorios que harán su hogar aún más confortable

Mosquiteras

Protegen su hogar de insectos, polvo y polen, permitiéndole disfrutar del aire fresco incluso en pleno verano.

Manillas con Cerradura

Los herrajes de calidad garantizan la comodidad de uso y la seguridad de sus ventanas y puertas.

Laminación

Las fachadas coloridas y el deseo de decorar su hogar hacen que la demanda de ventanas laminadas crezca cada año.

Elementos Decorativos

Las tiras y molduras decorativas permiten dar a sus ventanas un estilo individual, destacando las características arquitectónicas de su hogar.

Compare con Perfiles Similares

Soluciones alternativas de otros fabricantes

UW- value ≤ 1.3

Cortizo COR 60

Aluminio moderno con rotura de puente térmico. Sistema universal con profundidad de 60 mm que combina la elegancia de los perfiles metálicos, alta resistencia y excelente aislamiento térmico.
Eficiencia energética
B / A
Material
Aluminio RPT
Profundidad del perfil
60 mm
Aislamiento
Puente térmico 24 mm
Acristalamiento
hasta 48 mm
Protección térmica (Uw)
≤ 1.3 W/(m²·K)
Aislamiento acústico
≈ 44 Rw(dB)
UW- value ≤ 1.0

Cortizo COR 70 Industrial

Superventas en el mundo de la arquitectura moderna. Sistema de aluminio con profundidad de 70 mm y rotura de puente térmico ampliada, creado para quienes buscan máxima transmisión de luz y estética de minimalismo riguroso.
Eficiencia energética
A / A+
Material
Aluminio RPT
Profundidad del perfil
70 mm
Aislamiento
Puente térmico 35 mm
Acristalamiento
hasta 55 mm
Protección térmica (Uw)
≤ 1.0 W/(m²·K)
Aislamiento acústico
≈ 44 Rw(dB)
UW- value ≤ 1.0

Cortizo COR 70 Hoja Oculta

Estética de invisibilidad. Sistema innovador de aluminio con "hoja oculta": desde el exterior solo se ve el marco, haciendo indistinguibles las partes practicables y fijas de la ventana, y aumentando la superficie de acristalamiento.
Eficiencia energética
A / A+
Material
Aluminio (Oculta)
Profundidad del perfil
70 mm
Aislamiento
Puente térmico 35 mm
Acristalamiento
hasta 40 mm
Protección térmica (Uw)
≤ 1.0 W/(m²·K)
Aislamiento acústico
≈ 44 Rw(dB)
UW- value 1.4

Schüco AWS 65

El estándar de aluminio. Sistema universal con profundidad de montaje de 65 mm para soluciones elegantes y duraderas.
Eficiencia energética
B
Cámaras del perfil
Rotura térmica
Profundidad del perfil
65mm
Altura del perfil
104mm
Acristalamiento
hasta 55mm
Aislamiento térmico
Uw ≤ 1.4 W/(m²·K)
Aislamiento acústico
≈47 Rw(dB)
UW- value 0.9

Schüco AWS 75.SI+

Superaislamiento de aluminio. Sistema premium con profundidad de 75 mm e inserciones de espuma para máxima eficiencia térmica.
Eficiencia energética
A++
Cámaras del perfil
Rotura térmica + Espuma
Profundidad del perfil
75mm
Altura del perfil
117mm
Acristalamiento
hasta 61mm
Aislamiento térmico
Uw ≤ 0,90 W/(m²·K)
Aislamiento acústico
≈48 Rw(dB)
UW- value 0.9

Schüco AWS 75 PD.SI

Diseño panorámico. Sistema arquitectónico con anchura visible mínima de perfiles desde 55 mm para máxima luz.
Eficiencia energética
A+
Cámaras del perfil
Rotura térmica + Espuma
Profundidad del perfil
75mm
Altura del perfil
desde 55mm
Acristalamiento
hasta 50mm
Aislamiento térmico
Uw ≤ 0,90 W/(m²·K)
Aislamiento acústico
≈46 Rw(dB)

Dejar una reseña

Reseñas de clientes

Descubra lo que la gente dice al respecto

0.0
Valoración media
0 reseñas
5 ★
0
4 ★
0
3 ★
0
2 ★
0
1 ★
0

Aún no hay reseñas. ¡Sea el primero!

FAQs

Preguntas Frecuentes sobre Cortizo COR 80 Industrial

¿Realmente el aluminio puede ser más cálido que el plástico?

En el caso del COR 80, sí. Gracias a la rotura de puente térmico de 45 mm y las inserciones especiales de material espumado, este sistema supera en aislamiento térmico a las ventanas estándar de PVC de 70 milímetros. Es una obra maestra tecnológica que combina la resistencia del metal y el calor del plástico.

¿Es necesario un sistema tan cálido en el clima de España?

Sí, si valora el confort y el ahorro. En verano, este aislamiento funciona como un potente escudo contra el calor, conservando el frescor del aire acondicionado en el interior. En invierno, elimina el "efecto de pared fría" junto a la ventana. Además, es el estándar del futuro que aumenta el valor de su propiedad.

¿Cuál es la particularidad del diseño Industrial?

La línea Industrial se distingue por la ausencia total de redondeos. Los junquillos, el marco y la hoja tienen ángulos rectos y aristas definidas. Esto crea un aspecto riguroso y arquitectónico que combina perfectamente con fachadas modernas, hormigón, piedra y metal.

¿Para qué sirve una profundidad de perfil de 80 mm?

La profundidad de 80 mm es necesaria para alojar una amplia rotura de puente térmico y garantizar la rigidez estática. Esto permite fabricar hojas de mayor tamaño y peso que en sistemas más estrechos, sin riesgo de deformación por el viento o por su propio peso.

¿Qué nivel de seguridad tiene este sistema?

COR 80 pertenece a la categoría premium también en seguridad. El perfil permite instalar vidrios blindados y herraje de máxima clase antirrobo (hasta RC3). Es una auténtica caja fuerte con vidrio que protegerá el hogar no solo del clima, sino también de los intrusos.

¿Ayudará esta ventana contra el ruido de un aeropuerto?

Sin duda. La posibilidad de instalar acristalamientos de 65 mm permite utilizar composiciones acústicas especiales de vidrios con diferentes espesores y láminas. En combinación con las tres juntas de sellado, esto reduce el ruido en 46 dB, creando una sensación de silencio absoluto.

¿Necesita ayuda para elegir?

Solicite una consulta gratuita de nuestros especialistas. Le devolveremos la llamada en un momento conveniente y discutiremos cómo podemos ayudarle.

Todos los precios están en euros e incluyen IVA y costos de entrega. Los precios tachados corresponden a los precios originales del producto según el precio de venta recomendado por el fabricante (si está disponible). En caso de prepago, los precios y ofertas serán válidos durante 7 días desde la confirmación del pedido; posteriormente, estarán sujetos a cambios. Zona de entrega: España.

Los colores, acristalamientos y tamaños pueden diferir de las imágenes. No se garantiza el realismo de la imagen.

Algunos productos e imágenes relacionadas en videos pueden contener artículos descontinuados e información.

1 Los tiempos de producción pueden aumentarse bajo ciertas circunstancias (p. ej., diseño especial, períodos de vacaciones de la empresa, etc.). Por razones técnicas, no podemos tener en cuenta estas extensiones al calcular los tiempos de producción. Debido a circunstancias externas en la adquisición de materias primas como acero, PVC y madera, el tiempo de producción de su pedido puede aumentarse. Por favor, tenga esto en cuenta. Esto no le da derecho a exigir cambios en los precios contractuales o la posibilidad de rescindir el contrato de compraventa.

Como cliente de Ventanas Fraktal, recibirá recomendaciones por correo electrónico, de las cuales puede darse de baja en cualquier momento siguiendo el enlace adjunto. Puede encontrar información más detallada en nuestra Política de privacidad.