Schüco AWS 65 (Aluminium Window System) es el nivel de entrada ideal al mundo del acristalamiento premium de aluminio. El sistema combina la apariencia elegante propia del metal con características de aislamiento térmico dignas gracias a la zona de rotura térmica ampliada.
A diferencia de las ventanas de PVC, AWS 65 permite crear estructuras de grandes dimensiones con perfiles muy estrechos. Es la elección para la arquitectura moderna donde importan la máxima luz, las líneas estrictas y la fiabilidad inalcanzable para los perfiles de PVC.
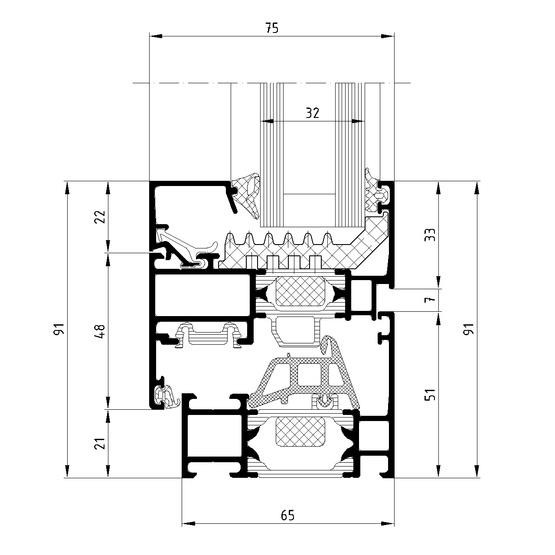
Especificaciones Técnicas
Detalles
El estándar de aluminio. Sistema universal con profundidad de montaje de 65 mm para soluciones elegantes y duraderas.
Parámetros constructivos del sistema:
- Profundidad de montaje: 65 mm.
- Tipo de perfil: Aluminio con rotura térmica y puente térmico de poliamida (tecnología de rotura térmica para bloquear el frío).
- Diseño: Disponible una amplia gama de contornos — desde el redondeado Soft Line (SL) y el biselado Residential Line (RL) hasta el sistema de bloque (BS) con hoja oculta.
- Sellado: Sellado de tres niveles con junta central masiva para alta hermeticidad.
- Herrajes: Compatibilidad total con herrajes ocultos Schüco AvanTec SimplySmart (hasta 160 kg de peso) y mecatrónicos TipTronic.
Posibilidades de acristalamiento:
- Espesor de relleno: de 11 a 55 mm.
- Tipos de acristalamiento: Cualquier configuración, incluidos vidrios pesados acústicos y blindados.
Características certificadas:
- Aislamiento térmico (Uf): desde 1,9 W/m²K (dependiendo del ancho de la parte visible).
- Aislamiento acústico (Rw): hasta 47 dB.
- Resistencia antirrobo: hasta clase RC3.
- Permeabilidad al aire: Clase 4.
- Estanqueidad al agua: Clase 9A.
Libertad de formas
Diseño versátil
AvanTec SimplySmart
Potencia oculta
Durabilidad
Rigidez del metal
Schüco AWS 65
El estándar de aluminio. Sistema universal con profundidad de montaje de 65 mm para soluciones elegantes y duraderas.
Más Ideas e Inspiración
Estos son algunos ejemplos de nuestro trabajo con el perfil Schüco AWS 65. Toda esta inspiración es para usted y solo para usted.
Estamos trabajando en mantener los datos actualizados. Contáctenos si necesita materiales actualizados.
Opciones de Financiación
Disfrute de su compra ahora y páguelo a plazos utilizando nuestros servicios de financiación.
Más detallesNo Olvide Añadir
Elementos adicionales y accesorios que harán su hogar aún más confortable
Mosquiteras
Manillas con Cerradura
Laminación
Elementos Decorativos
Compare con Perfiles Similares
Soluciones alternativas de otros fabricantes
Schüco AWS 75.SI+
Schüco AWS 75 PD.SI
Schüco AWS 90.SI+
Cortizo COR 60
Cortizo COR 70 Industrial
Cortizo COR 70 Hoja Oculta
Disponible en Su Región
Trabajamos en toda España
Dejar una reseña
Reseñas de clientes
Descubra lo que la gente dice al respecto
Aún no hay reseñas. ¡Sea el primero!
FAQs
Preguntas Frecuentes sobre Schüco AWS 65
¿Es este un perfil frío?
No, es aluminio «con rotura térmica». Dentro del perfil hay inserciones de poliamida (puentes térmicos) que interrumpen el flujo de frío. El coeficiente Uf ≈ 1.9–2.2 permite usar estas ventanas en espacios habitables, aunque son inferiores en calor a los sistemas de 75-90 mm de profundidad.
¿Se pueden hacer ventanas grandes?
Sí, esta es la principal ventaja del aluminio. Schüco AWS 65 permite hacer hojas de hasta 2.5 metros de altura y hasta 160 kg de peso, mientras que los perfiles siguen siendo estrechos y elegantes.
¿La pintura no se despegará?
El aluminio se pinta mediante pulverización de polvo o se anodiza. Este recubrimiento se convierte en parte del metal, no se decolora al sol, no se agrieta y es resistente a los arañazos. Están disponibles todos los colores RAL y acabados texturizados.
¿Cuál es la diferencia con AWS 70 o 75?
La principal diferencia es la profundidad de montaje (65 mm frente a 70/75 mm) y el nivel de aislamiento térmico. AWS 65 es algo más «frío», por lo que para chalets energéticamente eficientes se suele elegir el 75.SI, y la serie 65 para oficinas, terrazas, vestíbulos o pisos en climas cálidos.
¿Hay protección antirrobo?
El sistema está certificado hasta la clase de resistencia antirrobo RC3. El metal resistente y los herrajes especializados con pivotes en forma de hongo hacen de estas ventanas un serio obstáculo para los intrusos.
¿Se pueden automatizar las ventanas?
Sí, el sistema es totalmente compatible con los herrajes Schüco TipTronic. Las ventanas pueden abrirse con un botón, mando a distancia o smartphone, así como automáticamente para ventilación mediante sensores de CO2.









