Synego обеспечивает до 50% лучшую теплоизоляцию по сравнению со стандартными окнами. Благодаря увеличенной глубине 80 мм и третьему контуру уплотнения, это окно становится непреодолимым барьером для уличного шума и холода.
Поверхность профиля также выполнена по технологии HDF, что гарантирует легкий уход. Это идеальный выбор для частных домов и квартир, выходящих на шумные улицы, где важен абсолютный акустический комфорт.
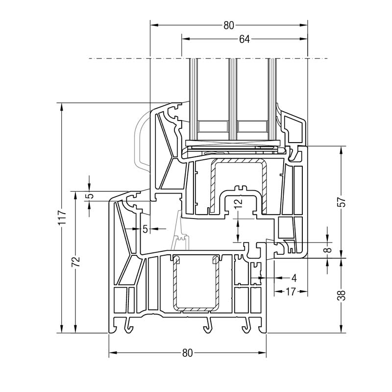
Технические характеристики
Детали
Мощная система 80 мм для максимальной тишины и тепла. Хит продаж в сегменте комфорт. HDF поверхность.
Конструктивные параметры системы:
- Монтажная глубина: 80 мм.
- Конструкция профиля: 7 воздушных камер в раме / 6 камер в створке. Такая структура обеспечивает высокую энергоэффективность.
- Система уплотнений: 3 контура уплотнения (система MD с центральным уплотнителем). Дополнительный средний контур надежно защищает от сквозняков, пыли и влаги.
- Поверхность: HDF (High Definition Finishing) — уникальная формула поверхности: идеально гладкая, с глянцевым блеском, максимально устойчивая к загрязнениям.
- Материал: RAU-PVC (непластифицированный ПВХ) с применением технологии EcoPuls (использование переработанного ядра для экологичности без потери качества).
Возможности остекления:
- Максимальная толщина стеклопакета: до 51 мм. Позволяет устанавливать многофункциональные теплые пакеты и толстые акустические стекла.
- Глубина фальца: Оптимизированная высота фальца остекления минимизирует образование конденсата по краевой зоне (дистанционной рамке).
Сертифицированные характеристики (согласно DIN EN 14351-1):
- Теплоизоляция профиля (Uf): 0,94 Вт/м²K (для версии с центральным уплотнением).
- Теплоизоляция окна в сборе (Uw): до 0,66 Вт/м²K (при использовании стекла Ug = 0,5 Вт/м²K), что превышает современные требования по теплосбережению.
- Звукоизоляция (Rw,p): до 46 дБ (высокий класс защиты от шума).
- Взломостойкость: до класса RC3 (при использовании усиленной фурнитуры и вклейке стеклопакета).
- Воздухопроницаемость: Класс 4.
- Ливнестойкость: Класс 9A.
Улыбка без усилий.
Блеск и гладкость
Пригласите солнце домой.
Свет в каждом уголке
Покой в каждом шорохе.
Тихая гавань
Открывать и закрывать легко.
Надежный объятий
Стоит крепко, служит долго.
Крепкая основа
Воздух, которым дышишь.
Свежий бриз
Rehau Synego
Мощная система 80 мм для максимальной тишины и тепла. Хит продаж в сегменте комфорт. HDF поверхность.
Больше идей и вдохновения
Это несколько примеров наших работ с профилем Rehau Synego. Все это вдохновение предназначено для вас и только для вас.
Мы работаем над актуальностью данных. Напишите нам если вам нужны свежие материалы.
Варианты финансирования
Наслаждайтесь покупкой сейчас и платите за нее по частям, воспользовавшись нашими услугами по финансированию.
ПодробнееНе забудьте добавить
Дополнительные элементы и аксессуары, которые сделают ваш дом еще более комфортным
Москитные сетки
Ручки и запорные элементы
Ламинация
Декоративные элементы
Сравните с похожими профилями
Альтернативные решения от других производителей
Rehau Euro-design 70
Rehau Brillant-Design 70
Rehau Brillant-Design 80
Kömmerling EuroFutur Elegance
Kömmerling Xtrem 76 AD
Kömmerling Xtrem 76 MD
Оставить отзыв
Отзывы клиентов
Узнайте, что говорят об этом
Пока нет отзывов. Будьте первым!
FAQs
Частые вопросы о Rehau Synego
В чём ключевые особенности Synego?
Монтажная глубина 80 мм, 7 камер в раме и 6 в створке, отличные показатели энергоэффективности и комфорта.
Какие варианты уплотнений доступны (AD/MD)?
Synego выпускается в версиях с двумя контурами (AD) и со средним контуром (MD). Версия MD дополнительно улучшает тепло- и звукоизоляцию.
Какая толщина стеклопакета поддерживается?
До 51 мм — можно применять энергоэффективные тройные стеклопакеты с низкоэмиссионным стеклом и тёплой дистанционной рамкой.
Какие тепло- и шумо‑характеристики?
При корректной комплектации Uw может достигать ≤ 0,86 Вт/м²·К, звукоизоляция — примерно до 46 дБ (Rw).
Нужно ли стальное армирование?
Да, как правило используется стальное армирование для обеспечения жёсткости, особенно на больших размерах и в ламинированных изделиях.
Какие есть опции дизайна?
Гладкая HDF‑поверхность, широкая палитра ламинаций и цветов KALEIDO, различные штапики, скрытые петли и дизайнерские ручки.
Для каких объектов подойдёт Synego?
Идеально для современного жилья с повышенными требованиями к энергосбережению и тишине; подходит и для реноваций.
Synego или Brillant‑Design 80 / Geneo — что выбрать?
Synego — оптимум «цена/эффективность». Brillant‑Design 80 — акцент на дизайне. Geneo — максимум энергоэффективности и больших размеров благодаря композиту RAU‑FIPRO X.








