UW- value 1,1

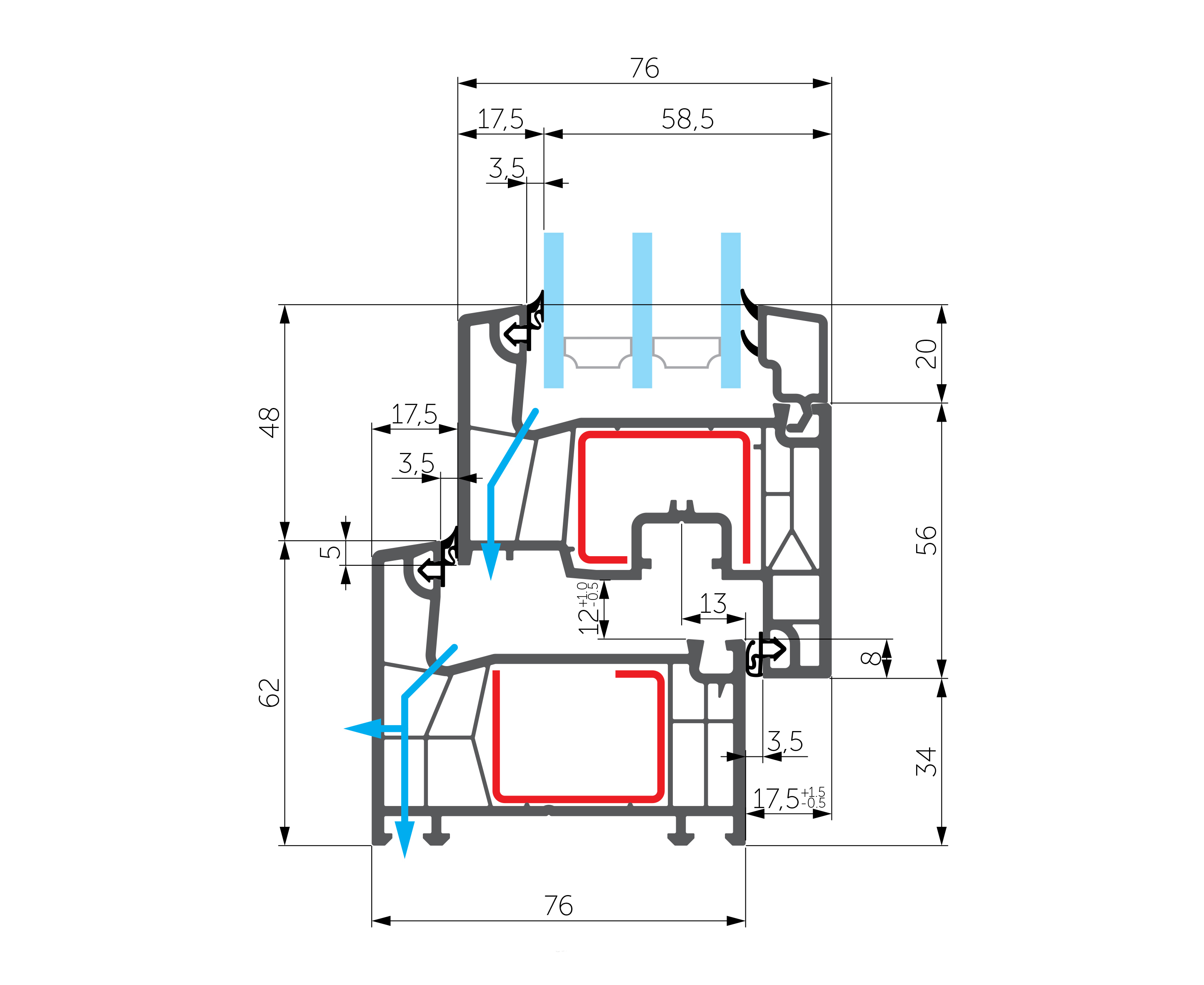
WDS 76 AD — Evolución en cada milímetro. Este sistema representa el estándar europeo moderno de acristalamiento, que está reemplazando gradualmente a las ventanas habituales de 70 milímetros. Los 6 mm adicionales de profundidad de montaje (76 mm) dan una enorme ventaja en rigidez de la estructura y posibilidades de acristalamiento.

Por qué elegir la plataforma de 76 mm:

  • Máxima transparencia: Gracias a la geometría moderna, el perfil es más bajo y el hueco de luz más grande. Obtiene un 10% más de luz natural en comparación con los marcos anchos antiguos.
  • Súper silencio: Es el sistema más asequible de nuestro catálogo donde se puede instalar un acristalamiento de 48 mm de espesor. Anteriormente, esta opción solo estaba disponible en series de élite caras.
  • Sistema AD (Arrest Design): La configuración clásica con dos juntas de sellado asegura un cierre suave de la hoja y un mantenimiento fácil (sin reborde intermedio donde se acumula el polvo), manteniendo alta estanqueidad.

Equilibrio ideal entre tecnología y precio para el acristalamiento de pisos modernos en Barcelona, Valencia y Madrid.

Número de artículo
600.100.003

Especificaciones Técnicas

Detalles

Acústica

Acristalamiento 48 mm

Acristalamiento grueso
La principal ventaja de la serie 76 es la posibilidad de instalar un acristalamiento ancho de hasta 48 mm con vidrios gruesos (6 mm o laminado). Esta configuración amortigua eficazmente el ruido exterior, reduciéndolo en 35-40 dB. Es la solución óptima para pisos cerca de carreteras y zonas ruidosas sin pagar de más por sistemas premium caros.

Fiabilidad

Estática moderna

Resistencia al viento
El mayor ancho del perfil (76 mm) funciona como un refuerzo adicional, fortaleciendo toda la estructura. La ventana mantiene su geometría ante fuertes cambios de temperatura y cargas de viento. Las hojas no ceden con el tiempo, y los herrajes duran más gracias a la distribución uniforme de la carga.

Diseño

Más luz

Marcos estrechos
El diseño del perfil está optimizado para minimizar la altura del plástico y aumentar el área de acristalamiento. Más luz solar entra en su hogar, haciendo que el espacio parezca visualmente más amplio y acogedor. La iluminación natural reduce la necesidad de luz artificial durante el día, ahorrando electricidad.

WDS 76 AD (76 mm)

Nuevo estándar europeo. Sistema de 76 mm que permite instalar potentes acristalamientos sin sobrecoste por premium.

Calcular Costo
Tiempo de fabricación estimado 3-6 semanas.
Servicios Disponibles
Medición y diseño gratuitos Más detalles
Entrega en el lugar de instalación Más detalles
Instalación por nuestros especialistas Más detalles
Comprar por Teléfono
Llámenos de lunes a sábado, excepto festivos, de 8:00 a 22:00. Domingos y festivos de 10:00 a 20:00. Llamar

Renovaciones

¿Pensando en la renovación que siempre pospone? Tenemos la solución

Más detalles

Opciones de Financiación

Disfrute de su compra ahora y páguelo a plazos utilizando nuestros servicios de financiación.

Más detalles

No Olvide Añadir

Elementos adicionales y accesorios que harán su hogar aún más confortable

Mosquiteras

Protegen su hogar de insectos, polvo y polen, permitiéndole disfrutar del aire fresco incluso en pleno verano.

Manillas con Cerradura

Los herrajes de calidad garantizan la comodidad de uso y la seguridad de sus ventanas y puertas.

Laminación

Las fachadas coloridas y el deseo de decorar su hogar hacen que la demanda de ventanas laminadas crezca cada año.

Elementos Decorativos

Las tiras y molduras decorativas permiten dar a sus ventanas un estilo individual, destacando las características arquitectónicas de su hogar.

Compare con Perfiles Similares

Soluciones alternativas de otros fabricantes

UW- value 1,4

WDS 5S

Mejor precio. Sistema de 5 cámaras y 60 mm para acristalamiento de casas de campo, balcones y locales técnicos.
Eficiencia energética
B
Cámaras del perfil
5 cámaras
Profundidad del perfil
60mm
Altura del perfil
107mm
Acristalamiento
hasta 32mm
Protección térmica
Uw ≤ 1,4 W/(m²·K)
Aislamiento acústico
≈38 Rw(dB)
UW- value 1,3

WDS 6S (70 mm)

El estándar dorado del acristalamiento. Sistema de 6 cámaras y 70 mm con aislamiento acústico mejorado.
Eficiencia energética
A
Cámaras del perfil
6 cámaras
Profundidad del perfil
70mm
Altura del perfil
113mm
Acristalamiento
hasta 40mm
Protección térmica
Uw ≤ 1,3 W/(m²·K)
Aislamiento acústico
≈40 Rw(dB)
UW- value 1,2

WDS 7S (70 mm)

Estética sin compromisos. Sistema de 6 cámaras con diseño Soft Line para interiores refinados.
Eficiencia energética
A
Cámaras del perfil
6 cámaras
Profundidad del perfil
70mm
Altura del perfil
113mm
Acristalamiento
hasta 40mm
Protección térmica
Uw ≤ 1,2 W/(m²·K)
Aislamiento acústico
≈42 Rw(dB)
UW- value ≤ 1.1

Kömmerling EuroFutur Elegance

Un clásico para una reforma rápida y económica. Ideal para sustituir ventanas antiguas en pisos: se instala fácilmente en huecos estándar y ofrece un aspecto acogedor gracias a sus líneas suaves y redondeadas.
Eficiencia energética
B / A
Material
PVC (Greenline)
Profundidad del perfil
70 mm
Aislamiento
5 cámaras
Acristalamiento
hasta 39 mm
Protección térmica (Uw)
≤ 1.3 W/(m²·K)
Aislamiento acústico
≈ 40 Rw(dB)
UW- value ≤ 0.9

Kömmerling Xtrem 76 AD

Opción universal para el sol español. La composición especial del perfil no teme al calor y no amarillea con el tiempo. Es el «punto medio» para quienes necesitan ventanas alemanas fiables sin pagar de más por opciones innecesarias.
Eficiencia energética
A
Material
PVC (Xtrem)
Profundidad del perfil
76 mm
Aislamiento
5 cámaras
Acristalamiento
hasta 50 mm
Protección térmica (Uw)
≤ 1.1 W/(m²·K)
Aislamiento acústico
≈ 44 Rw(dB)
UW- value ≤ 0.8

Kömmerling Xtrem 76 MD

La mejor solución para casas cerca del mar. La tercera junta actúa como barrera: no deja entrar el polvo salino ni la humedad, protegiendo los mecanismos de la corrosión, y amortigua mucho mejor el ruido exterior.
Eficiencia energética
A+
Material
PVC (Xtrem)
Profundidad del perfil
76 mm
Aislamiento
6 cámaras / 3 juntas
Acristalamiento
hasta 50 mm
Protección térmica (Uw)
≤ 1.0 W/(m²·K)
Aislamiento acústico
≈ 47 Rw(dB)

Dejar una reseña

Reseñas de clientes

Descubra lo que la gente dice al respecto

0.0
Valoración media
0 reseñas
5 ★
0
4 ★
0
3 ★
0
2 ★
0
1 ★
0

Aún no hay reseñas. ¡Sea el primero!

FAQs

Preguntas Frecuentes sobre WDS 76 AD (76 mm)

¿Qué significa la designación AD?

AD (Anschlagdichtung) significa un sistema con dos juntas de sellado (exterior e interior). Es un diseño clásico probado que garantiza fiabilidad, facilidad de ajuste y un precio más asequible en comparación con los sistemas MD (tres juntas).

¿Por qué necesito 76 mm si hay 70 mm?

76 mm es una plataforma más moderna. Con una diferencia de precio de solo alrededor del 10-15%, obtiene la posibilidad de instalar acristalamientos más cálidos y silenciosos (48 mm frente a 40 mm de la serie 70), así como un marco más rígido.

¿Cuál es el aislamiento térmico de esta ventana?

El coeficiente de transmisión térmica del marco Uf es de 1,2 W/m²K. Con un buen acristalamiento, el valor total Uw puede alcanzar 0,8-0,9, lo que corresponde a altos estándares de ahorro energético de España.

¿Es difícil limpiar estas ventanas?

Al contrario, muy fácil. Gracias al sistema AD (ausencia de junta intermedia), el galce del marco permanece abierto y liso — se limpia fácilmente con un paño, sin sitios donde se acumule la suciedad.

¿Se pueden hacer puertas con este perfil?

Sí, el sistema WDS 76 AD tiene hojas de puerta reforzadas que permiten fabricar conjuntos de entrada y puertas de terraza con alto nivel de seguridad.

¿En qué es mejor WDS 76 que REHAU Euro 70 o VEKA Softline 70?

WDS 76 AD tiene mayor profundidad de montaje (76 mm frente a 70 mm), lo que permite instalar acristalamientos más gruesos de hasta 48 mm para mejor aislamiento acústico. Con calidad de perfil comparable, el precio de WDS es un 20-30% inferior gracias a la logística optimizada desde Ucrania. Todos los sistemas se fabrican según estándares europeos de calidad unificados.

¿Necesita ayuda para elegir?

Solicite una consulta gratuita de nuestros especialistas. Le devolveremos la llamada en un momento conveniente y discutiremos cómo podemos ayudarle.

Todos los precios están en euros e incluyen IVA y costos de entrega. Los precios tachados corresponden a los precios originales del producto según el precio de venta recomendado por el fabricante (si está disponible). En caso de prepago, los precios y ofertas serán válidos durante 7 días desde la confirmación del pedido; posteriormente, estarán sujetos a cambios. Zona de entrega: España.

Los colores, acristalamientos y tamaños pueden diferir de las imágenes. No se garantiza el realismo de la imagen.

Algunos productos e imágenes relacionadas en videos pueden contener artículos descontinuados e información.

1 Los tiempos de producción pueden aumentarse bajo ciertas circunstancias (p. ej., diseño especial, períodos de vacaciones de la empresa, etc.). Por razones técnicas, no podemos tener en cuenta estas extensiones al calcular los tiempos de producción. Debido a circunstancias externas en la adquisición de materias primas como acero, PVC y madera, el tiempo de producción de su pedido puede aumentarse. Por favor, tenga esto en cuenta. Esto no le da derecho a exigir cambios en los precios contractuales o la posibilidad de rescindir el contrato de compraventa.

Como cliente de Ventanas Fraktal, recibirá recomendaciones por correo electrónico, de las cuales puede darse de baja en cualquier momento siguiendo el enlace adjunto. Puede encontrar información más detallada en nuestra Política de privacidad.