UW- value 1.1

Schüco LivIngSlide es la continuación ideal de la línea LivIng en formato de grandes puertas correderas. Los ingenieros lograron transferir la principal ventaja del sistema de ventanas — las juntas EPDM soldables — al diseño corredero. Esto proporciona hermeticidad de clase Hi-End, inaccesible para los portales de plástico convencionales.

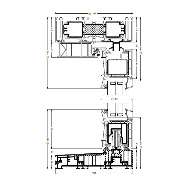
Las hojas de hasta 400 kg de peso se deslizan prácticamente sin ruido y se controlan con una mano. Es la mejor solución para salidas a terraza en casas de campo, donde importa el máximo aislamiento térmico y la protección contra corrientes en invierno.

Número de artículo
500.320.001

Especificaciones Técnicas

Detalles

Sin corrientes

Hermeticidad EPDM

Junta EPDM
El uso de juntas EPDM soldables innovadoras en el sistema corredero es un avance de Schüco. No se endurecen con el frío y crean un contorno de protección continuo en las esquinas, resolviendo el problema principal de los portales: las corrientes de aire.

Calor en invierno

Balance energético

Rotura térmica del umbral
Gracias a la separación térmica del umbral y el perfil de refuerzo, así como a la profundidad de hoja de 82 mm, el sistema previene la formación de puentes térmicos. Esto permite evitar la condensación en el suelo y conservar el calor en casa.

Luz y color

Diseño de libertad

Paleta de colores
El sistema está disponible en toda la gama de láminas Schüco, incluida la serie exclusiva AutomotiveFinish (metálico). La estrecha anchura visible de perfiles aumenta la superficie de acristalamiento, llenando la habitación de luz.

Schüco LivIngSlide

Nueva dimensión de confort. Sistema corredero elevador de PVC basado en la tecnología Schüco LivIng 82.

Calcular Costo
Tiempo de fabricación estimado 3-6 semanas.
Servicios Disponibles
Medición y diseño gratuitos Más detalles
Entrega en el lugar de instalación Más detalles
Instalación por nuestros especialistas Más detalles
Comprar por Teléfono
Llámenos de lunes a sábado, excepto festivos, de 8:00 a 22:00. Domingos y festivos de 10:00 a 20:00. Llamar

Renovaciones

¿Pensando en la renovación que siempre pospone? Tenemos la solución

Más detalles

Opciones de Financiación

Disfrute de su compra ahora y páguelo a plazos utilizando nuestros servicios de financiación.

Más detalles

No Olvide Añadir

Elementos adicionales y accesorios que harán su hogar aún más confortable

Mosquiteras

Protegen su hogar de insectos, polvo y polen, permitiéndole disfrutar del aire fresco incluso en pleno verano.

Manillas con Cerradura

Los herrajes de calidad garantizan la comodidad de uso y la seguridad de sus ventanas y puertas.

Laminación

Las fachadas coloridas y el deseo de decorar su hogar hacen que la demanda de ventanas laminadas crezca cada año.

Elementos Decorativos

Las tiras y molduras decorativas permiten dar a sus ventanas un estilo individual, destacando las características arquitectónicas de su hogar.

Compare con Perfiles Similares

Soluciones alternativas de otros fabricantes

UW- value 1.3

Schüco Corona CT 70

El estándar alemán. Sistema premium con diseño variable de hojas (Classic, Cava, Rondo) y mayor rigidez.
Eficiencia energética
A
Cámaras del perfil
5 cámaras
Profundidad del perfil
70mm
Altura del perfil
120mm
Acristalamiento
hasta 52mm
Aislamiento térmico
Uw ≤ 1,3 W/(m²·K)
Aislamiento acústico
≈48 Rw(dB)
UW- value 0,8

Schüco LivIng 82

Eficiencia energética del futuro. Sistema de 7 cámaras con profundidad de montaje de 82 mm y las primeras juntas EPDM soldables del mundo.
Eficiencia energética
A++
Cámaras del perfil
7 cámaras
Profundidad del perfil
82mm
Altura del perfil
120mm
Acristalamiento
hasta 52mm
Aislamiento térmico
Uw ≤ 0,80 W/(m²·K)
Aislamiento acústico
≈47 Rw(dB)
UW- value 0,80

Schüco LivIng Door

Entrada premium. Sistema de puerta de PVC basado en la plataforma LivIng 82 con umbral de nivel cero.
Eficiencia energetica
A++
Camaras del perfil
7 camaras
Profundidad del perfil
82mm
Altura del perfil
168mm
Acristalamiento
hasta 52mm
Aislamiento termico
Uw ≤ 0,80 W/(m²·K)
Aislamiento acustico
≈45 Rw(dB)
UW- value 1,5

Rehau High-Design Slide

Elegante sistema corredera para balcones y terrazas.
Eficiencia energética
B
Tipo de sistema
Corredera
Opciones de raíles
2/3/4 raíles
Sellado
Sellos de cepillo
Unidad de vidrio
hasta 24mm
Superficie
Acabado HDF
Protección térmica
Uw ≤ 1,5 W/(m²·K)
UW- value 1,0

Rehau Synego Slide

Sistema corredera hermético con mecanismo de presión. Silencio y facilidad en un solo movimiento.
Eficiencia energética
A+
Tipo de sistema
Corredera hermética
Profundidad del perfil
80mm
Cámaras del perfil
7 cámaras
Unidad de vidrio
hasta 51mm
Peso máx. panel
200kg
Protección térmica
Uw ≤ 1,0 W/(m²·K)
UW- value 1,3

Rehau Panorama Swing

Un sistema único donde las hojas se deslizan y giran, abriendo completamente el hueco.
Eficiencia energética
A
Tipo de sistema
Corredera-giratoria
Movimiento de paneles
Independiente
Apertura
Hasta 100%
Paneles
3-7 paneles
Unidad de vidrio
hasta 40mm
Protección térmica
Uw ≤ 1,3 W/(m²·K)

Dejar una reseña

Reseñas de clientes

Descubra lo que la gente dice al respecto

0.0
Valoración media
0 reseñas
5 ★
0
4 ★
0
3 ★
0
2 ★
0
1 ★
0

Aún no hay reseñas. ¡Sea el primero!

FAQs

Preguntas Frecuentes sobre Schüco LivIngSlide

¿Qué es un sistema corredero elevador?

Al girar la manilla, la hoja se eleva ligeramente sobre los rodillos y se desliza fácilmente por el carril. Al cerrar, se baja, presionando firmemente contra las juntas por su propio peso, garantizando hermeticidad.

¿Qué tan cálida es esta solución comparada con el aluminio?

El PVC por sí mismo tiene baja conductividad térmica. En combinación con un perfil multicámara y umbral cálido, LivIngSlide a menudo supera a los análogos de aluminio de la misma categoría de precio en conservación de calor (Uw hasta 0.8).

¿Qué tamaño puede tener la puerta?

La anchura máxima de toda la estructura puede alcanzar 6.5 metros, y la altura 2.8 metros. El peso de una hoja es de hasta 400 kg.

¿Es difícil abrir una hoja pesada?

No, gracias a herrajes de calidad y rodillos sobre rodamientos, incluso un niño puede mover una hoja de 300 kg de peso. Opcionalmente se pueden instalar amortiguadores o motor eléctrico.

¿Qué umbral tiene este sistema?

El umbral tiene rotura térmica para protección contra congelación. Puede instalarse con saliente mínimo sobre el suelo, proporcionando un paso sin barreras cómodo.

¿Es segura la pared de vidrio?

Sí, se utiliza vidrio templado o laminado. El propio sistema está equipado con herrajes antirrobo y junquillos especiales, proporcionando clase de protección hasta RC2.

¿Necesita ayuda para elegir?

Solicite una consulta gratuita de nuestros especialistas. Le devolveremos la llamada en un momento conveniente y discutiremos cómo podemos ayudarle.

Todos los precios están en euros e incluyen IVA y costos de entrega. Los precios tachados corresponden a los precios originales del producto según el precio de venta recomendado por el fabricante (si está disponible). En caso de prepago, los precios y ofertas serán válidos durante 7 días desde la confirmación del pedido; posteriormente, estarán sujetos a cambios. Zona de entrega: España.

Los colores, acristalamientos y tamaños pueden diferir de las imágenes. No se garantiza el realismo de la imagen.

Algunos productos e imágenes relacionadas en videos pueden contener artículos descontinuados e información.

1 Los tiempos de producción pueden aumentarse bajo ciertas circunstancias (p. ej., diseño especial, períodos de vacaciones de la empresa, etc.). Por razones técnicas, no podemos tener en cuenta estas extensiones al calcular los tiempos de producción. Debido a circunstancias externas en la adquisición de materias primas como acero, PVC y madera, el tiempo de producción de su pedido puede aumentarse. Por favor, tenga esto en cuenta. Esto no le da derecho a exigir cambios en los precios contractuales o la posibilidad de rescindir el contrato de compraventa.

Como cliente de Ventanas Fraktal, recibirá recomendaciones por correo electrónico, de las cuales puede darse de baja en cualquier momento siguiendo el enlace adjunto. Puede encontrar información más detallada en nuestra Política de privacidad.